Código: 153

Casa na Planta Jardim Bom Jesus

Jardim Bom Jesus - Ariquemes/RO
Compartilhe:
WhatsApp
R$ 210.000,00
/Venda
Icon
2
Dormitório(s)
Icon
1
Banheiro(s)
Icon
44m²
Área construída
Icon
128m²
Área total
Icon
5,33x24m²
Área do terreno

Descrição do imóvel

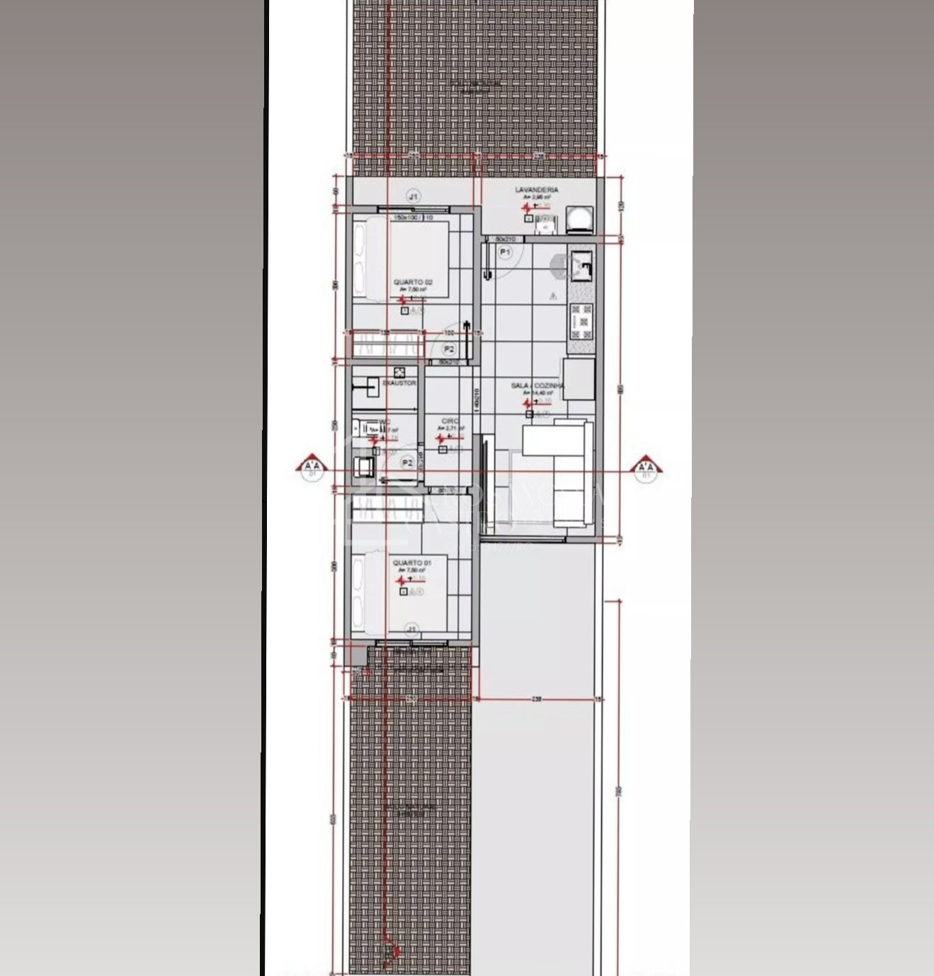
Imóvel na planta localizado no Jardim Bom Jesus, projetado para oferecer conforto e funcionalidade. A casa possui 2 quartos, banheiro social, sala de estar, cozinha, piso cerâmico, lavanderia e um amplo quintal.

Diferencial com telhado à mostra, proporcionando charme e estilo tradicional à fachada.

Imóvel financiável, com condições que facilitam a conquista da casa própria.

Entre em contato para mais informações e garanta já a sua unidade.

Características do imóvel

  • 2 Dormitório(s)
  • 1 Vaga(s) Garagen(s)
  • Aceita Financiamento
  • 1 Banheiro(s)
  • 128m² Área total
  • 44m² Área construída
  • 5,33x24m² Área do terreno

Localização

Jardim Bom Jesus - Jardim Bom Jesus - Ariquemes/RO

Gostou desse imóvel?

Agende uma visita!

Entrar em Contato
Compartilhe:

Solicite mais informações

Solicite informações e comece sua jornada rumo ao imóvel ideal.

WhatsApp Rosângela Castro Corretora de Imóveis