Código: 107

Casa na Planta Jardim Zona Sul

Jardim Zona Sul - Ariquemes/RO
Compartilhe:
WhatsApp
R$ 191.000,00
/Venda
Icon
2
Dormitório(s)
Icon
1
Banheiro(s)
Icon
49m²
Área construída
Icon
125m²
Área total
Icon
6x30m²
Área do terreno

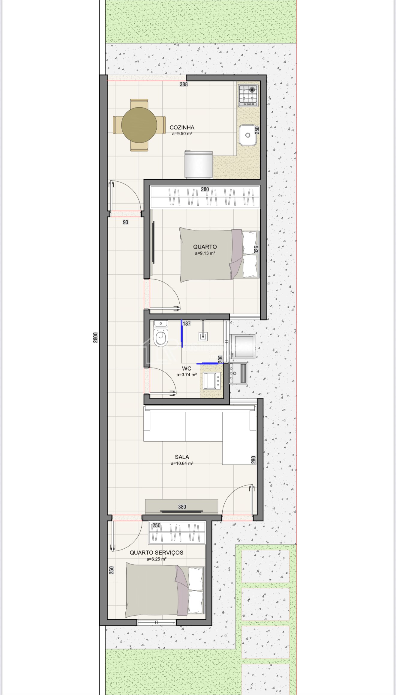
Descrição do imóvel

Oportunidade de sair do Aluguel e conquistar a sua casa prórpia e ainda personalisar ao seu gosto!

Casa disponível na planta com 02 quartos, sala, cozinha nos fundos, banheiro social, lavanderia.

Terreno de 6x30 casa com aproximadamente 49 m²

Agende uma reunião e venha conhecer mais detalhes.

Características do imóvel

  • 2 Dormitório(s)
  • 1 Vaga(s) Garagen(s)
  • Aceita Financiamento
  • 1 Banheiro(s)
  • 125m² Área total
  • 49m² Área construída
  • 6x30m² Área do terreno

Localização

Jardim Zona Sul - Jardim Zona Sul - Ariquemes/RO

Gostou desse imóvel?

Agende uma visita!

Entrar em Contato
Compartilhe:

Solicite mais informações

Solicite informações e comece sua jornada rumo ao imóvel ideal.

WhatsApp Rosângela Castro Corretora de Imóveis